1차 청년 매입임대주택 입주자 모집공고를 신규공급과 재공급을 포함해 총 526호를 모집하고 있으니 사이버모델하우스와 현장사진, 도면을 꼼꼼히 확인하고 접수하셔서 좋은 결과 있으시기 바랍니다.
매입임대주택이란?
매입임대주택은 서울주택도시공사에서 매입해서 주변 시세의 30~50%로 살 수 있는 주택들을 말하며, 일반 매입임대와 청년/신혼부부 매입임대, 장기미임대등 다양한 유형의 매입임대주택이 있습니다. 각 유형별로 연 중 2회 정기공고가 있어 안내해 드리고 있으니 확인하시기 바랍니다.
모집공고
공급일정

✅ 신청 전 주택공개(현장방문) : 2023년 7월 10일(월) ~ 7월 14일(금)
✅ 인터넷 청약접수 : 2023년 7월 17일(월) 10:00 ~ 7월 19일(수) 17:00
✅ 서류심사대상자 발표 : 2023년 7월 21일(금) 예정
✅ 서류심사대상자 입주자격 심사 : 2023년 11월
✅ 당첨자 및 예비자 발표 : 2023년 12월 1일(금)
✅ 당첨자 계약 : 2023년 12월 18일(월) ~ 12월 22일(금)
✅ 입주지간 : 2024년 1월 8일(월) ~ 3월 8일(금)
✅ 서류제출 : 서류심사대상자에 한정, 등기우편 제출
임대기간
✅ 계약기간 : 2년
- 최초 임대자 계약기간은 2년이며, 입주자격 유지시 2회에 한해 재계약이 가능(최장 6년 거주)합니다.
✅ 재계약
- 소득 및 자산 기준을 제외한 입주 자격을 재계약시에도 유지해야 재계약이 가능합니다.
- 입주 후 유형이 변경(대학생 · 취업준비생 → 청년)되어도 재계약이 가능하나 변경된 유형에 따른 임대조건으로 재계약을 진행해야 합니다.
- 입주 후 혼인한 경우 2년 단위로 7회 추가 연장계약이 가능합니다. (최장 20년 거주, 임대보증금 및 임대료는 '기존주택 등 매입임재주택 업무처리지침' 제19조 제3항 제19조 제4항에 따라 갱신)
임대보증금 및 임대료 안내
- 1순위(감정평가액의 30%)와 2 · 3순위(감정평가액의 50%)의 임대조건을 차등 적용합니다.
- 청년은 기본 임대보증금과 임대료를 적용하고, 대학생 · 취업준비생의 경우 임대보증금 100만원(200만원)으로 별도 적용합니다.
- 상호전환(임대보증금 ↔ 월임대료)은 임차인의 선택사항으로 계약체결 후 진행 가능하며, 전환한 경우 1년 이내에는 다시 신청할 수 없습니다.
- 월임대료(▼) → 임대보증금(▲) 전환 : 월임대료의 60%(신규공급 대상 주택의 경우 80%)까지 임대보증금으로 전환 가능하며, 전환 이율으 ㄴ6.7%입니다.
- 낮출 월임대료 금액 × 12(개월) ÷ 0.067(6.7%) = 추가되는 임대보증금 금액
- 임대보증금(▼) → 월임대료(▲) 전환 : 임대보증금의 60%까지 월임대료로 전환 가능하며, 전환 이율은 2.5%입니다.(별도 임대보증금 적용받는 대학생 · 취업준비생은 전환 불가)
- 낮출 임대보증금 금액 × 0.025(2.5%) ÷ 12(개월) = 추가되는 월임대료 금액
공급현황 총 526호
✅신규공급 288호와 재고급 238호에 대한 청년 매입임대주택 입주자 모집공고 공급현황입니다.

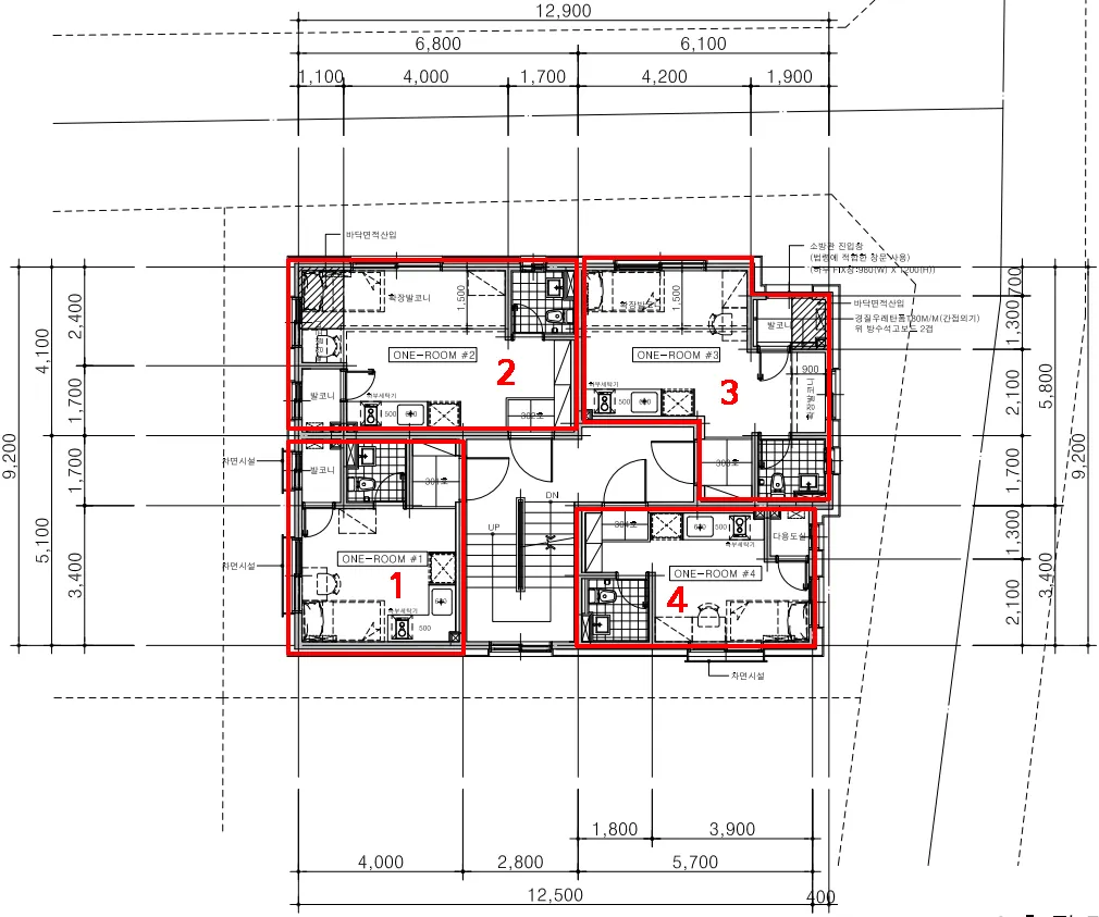
사이버 모델하우스
👉 아래 사이버 모델하우스 촬영 주택은 강동구 '와이디하우스' [천호동 391-21] 주택이며, 참고용으로 확인 바랍니다.

신규공급 288호
SH서울주택도시공사에서 제공한 자료로 신규물량이 건 별로 도면과 주택 사진이 파일이 첨부되어 있습니다. 주소는 아래에 제공하나 도면과 사진자료는 용량이 많은 관계로 파일을 한 번에 올리기 어려워 캡처로 올리니 링크로 연결된 자료를 직접 다운로드하여 원하는 곳의 자료를 확인하시기 바랍니다.
✅ 신규공급으로 모집하는 자치구
강동구, 관악구, 구로구, 금천구, 서초구, 영등포구, 은평구가 있습니다. 도시형 생활주택과 오피스텔, 엘리베이터 설치유무등이 기록되어 있습니다.
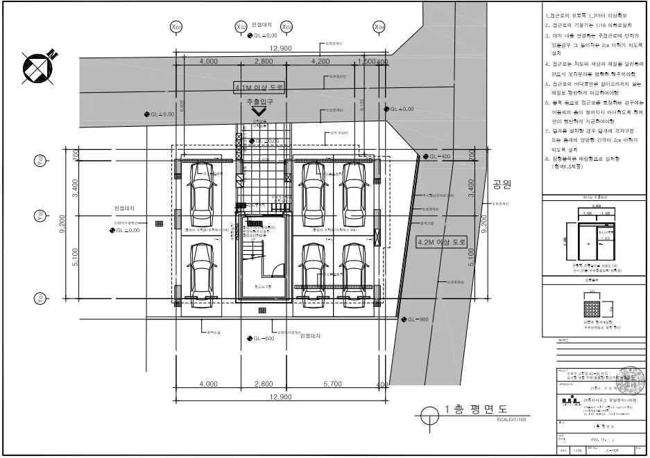
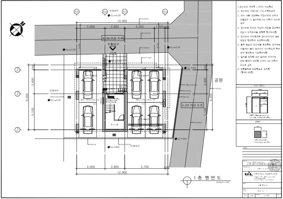
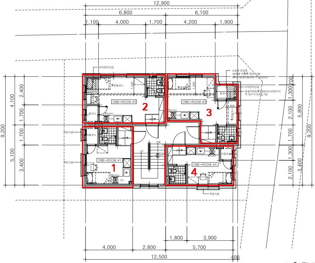
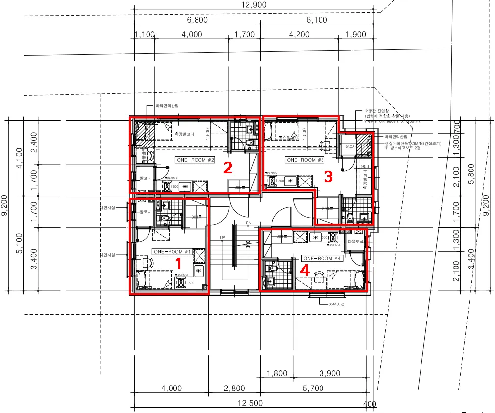
✅ 신규공급(288호) 도면
👉 아래 파일 안에는 모집 중인 주택의 도면이 첨부되어 있고 그 안에는 조감도, 건축개요, 1층부터 옥탑까지의 평면도가 전부 기재되어 있으니 꼼꼼히 확인하실 수 있습니다. 위에 첨부되어 있는 공급현황 자료에는 없는 자료이며, SH서울주택도시공사에서 별도로 제공한 자료입니다.
✅ 신규공급(288호) 사진
👉 파일 안에는 모집 중인 주택의 현장사진이 첨부되어 있고 그 안에는 위 도면에서 본 도면을 실제 현장 사진과 실내 내부 사진이 전부 첨부되어 있어 꼼꼼히 확인하실 수 있습니다. 위에 첨부되어 있는 공급현황 자료에는 없는 자료이며, SH서울주택도시공사에서 별도로 제공한 자료입니다.


재공급 238호
SH서울주택도시공사에서 제공한 자료로 재공급물량의 건 별로 도면과 주택 사진이 파일이 첨부되어 있습니다. 주소는 아래에 제공하나 도면과 사진자료는 용량이 많은 관계로 파일을 한 번에 올리기 어려워 캡처로 올리니 링크로 연결된 자료를 직접 다운로드하여 원하는 곳의 자료를 확인하시기 바랍니다.
✅ 재공급으로 모집하는 자치구
강남구, 강동구, 강북구, 강서구, 관악구, 광진구, 구로구, 금천구, 동대문구, 동작구, 마포구, 서대문구, 서초구, 성북구, 송파구, 양천구, 영등포구, 종로구, 중랑구가 있습니다. 도시형 생활주택과 오피스텔, 엘리베이터 설치유무등이 기록되어 있습니다.
✅ 재공급(238호) 도면
👉 파일 안에 모집중인 주택의 도면과 현장사진이 함께 첨부되어 있어 꼼꼼히 확인하실 수 있습니다. 위에 첨부되어 있는 공급현황 자료에는 없는 자료이며, SH서울주택도시공사에서 별도로 제공한 자료입니다.


신청자격
모집공고일(2023년 6월 30일) 현재 무주택자(본인) 이면서 미혼(현재 혼인상태가 아님)인 대학생, 취업준비생, 청년으로서 각 순위 별 소득 및 자산, 자동차가액 기준을 충족하는 자
※ 신청순위(1~3순위) 별 상세 자격기준 및 가점 사항은 아래 모집공고문 참고
✅ 청년 매입임대주택 신청유형
| ① 대학생 | 서울특별시 소재 대학에 재학(입주신청일 이후 최초 도래 학기 복학 및 입학예정자 포함) 중인 자 |
|---|---|
| ② 취업준비생 | 대학 또는 '초·중등교육법'에 따른 고등·고등기술학교를 졸업(졸업유예자 포함) 하거나 중퇴한 후 2년 이내인 사람으로서 직장에 재직 중이지 않은 자 |
| ③ 청년 | 만 19세 이상 ~ 39세 이하인 자 |
✅ 청년 매입임대주택 가점사항 및 입주자선정 우선순위

청년 매입임대주택 모집절차
✅ 주택공개
| 공개기간 | ■ 2023. 07. 10(월) ~ 2023. 07. 14(금) 공개시간 : 10:00 ~ 16:00, 점심시간 12:00 ~ 13:00 제외 |
|---|---|
| 공개절차 | ■ 공개기간 중관할센터에 유선 연락하여 방문 희망 일시 및 방법을 협의 후 해당주택을방문해야 합니다.(개별 임의 방문 불가) ■ 관할센터 연락처 : '추가 안내' 참고 |
| 유의사항 | ■ 주소지에 따라 내부 상태 및 주변 여건이 다르므로 신청 전에 반드시 해당주택을 방문하여 직접 확인하시기 바라며,주택 미확인으로 인한 이의제기나 동호변경은 불가능합니다. ■ 주택공개 일정을 협의하기 위한 시일이 쇼요될 수 있습니다. |
✅ 신청접수(인터넷 청약)
- 청약방법 : 인터넷 청약 (우편접수는 받지 않음)
- 접수일정 : 2023. 07. 17(월) 10:00 ~ 07. 19(수) 17:00 (3일간)
※ 1,2,3순위 동시 접수


👉 매입임대주택 청약자격이 더 궁금하거나 청약연습하기를 통해 편리하게 신청하실 수 있습니다. (현재는 모집공고 X)


✅ 신청접수(스마트폰 청약)


![]() |
![]() |
![]() |
![]() |
![]() |
![]() |
![]() |
![]() |
![]() |
'지원정책' 카테고리의 다른 글
| 대학생 대학원생 학자금대출이자 지원 신청방법 및 자격확인 (0) | 2023.07.29 |
|---|---|
| 전액 경기도 지원 자바스크립트 활용 과정 참여자 모집안내 및 신청자격 자가진단 (1) | 2023.07.24 |
| 청년월세 한시 특별지원 신청자격, 신청방법 및 모의계산 바로가기 (0) | 2023.07.21 |
| 헷갈리는 '우리아이 안심 의료기관' 이렇게 운영됩니다. 어린이 야간 · 휴일 · 응급 소아진료 체계 구축 (0) | 2023.06.27 |
| [엄마아빠 행복 프로젝트] 가정행복 도시락 밀키트 할인 지원 신청안내 / GS25, CU, 오아시스 (0) | 2023.06.26 |
| 서울 임산부 맞벌이 다자녀 가정에 '서울형가사서비스' 가사관리사 신청안내 (0) | 2023.06.26 |
| 코로나19 입원·격리자 생활지원비 신청안내와 변경된 지급절차 안내 (0) | 2023.06.25 |





















댓글